6
$863,000 Sale
Listed 10 hours ago
34 Hollingsworth Street
· 3
· 2
· 2
· 2000-2500
Listing History
Buy/Sell/Terminated/Expired listing history for 34 Hollingsworth Street
Key Facts
Key facts for 34 Hollingsworth Street
Property Type
House, Bungalow
Parking
Attached 2 garage, 2 parking
MLS #
X12438051
Size
2000-2500 sqft
Basement
Walk-Up,Unfinished
Listed on
2025-10-01
Lot size
15 x 30.4
Tax
-
Days on Market
1
Approximate Age
New
Maintenance Fee
-
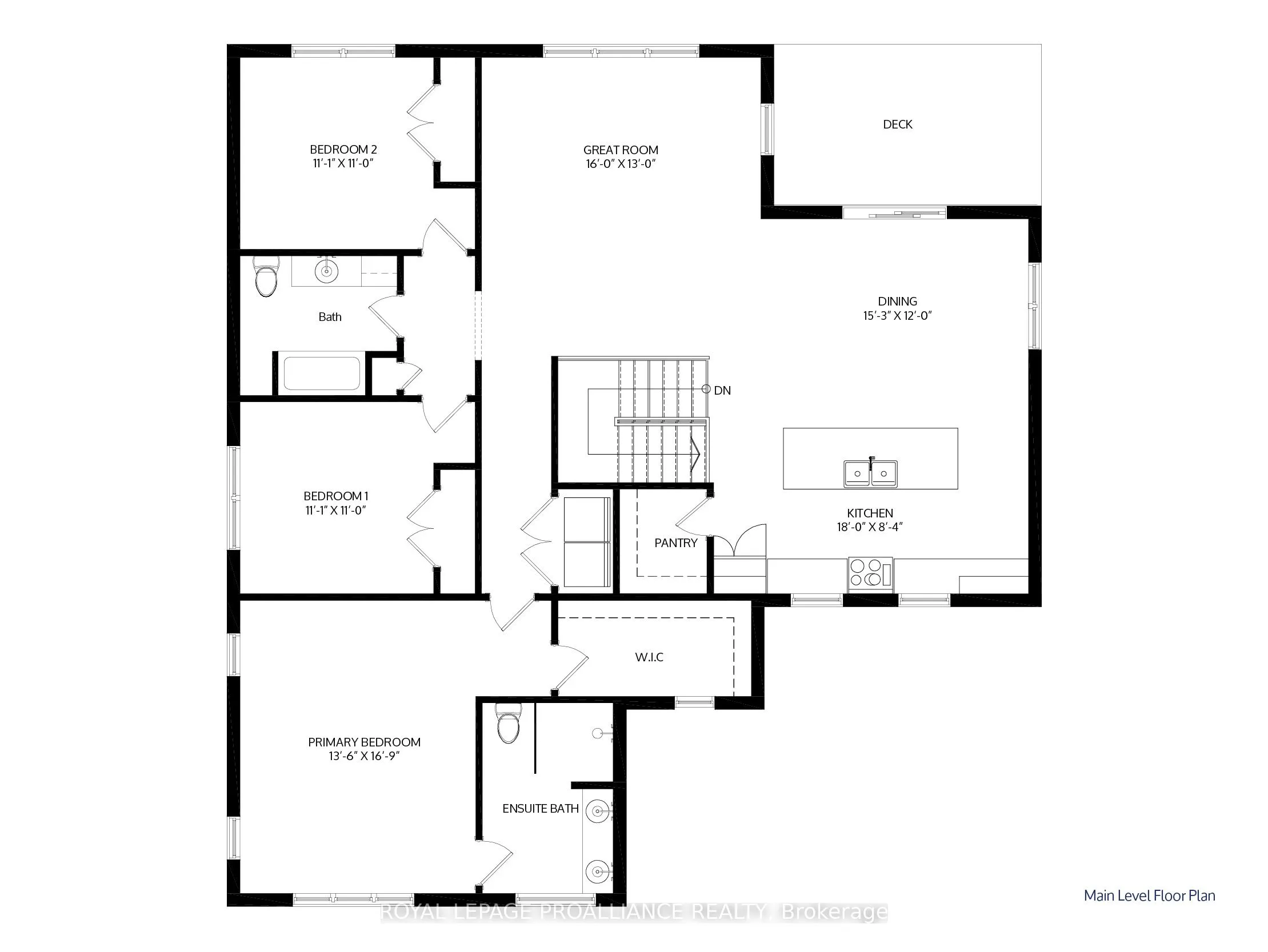
Description
The Rayna, exclusive to one lot in Eastfields, is a beautifully designed bungalow walk-up that combines comfort, style, and functionality in a spacious 3-bedroom, 2-bathroom layout. With its open-concept floor plan and thoughtful details, the Rayna offers the perfect balance of convenience and elega...nce. Step inside through the welcoming foyer, complete with a convenient closet, and walk up to the expansive main level. At the heart of the home, the expansive kitchen features plenty of counter space, custom cabinetry, and a large walk-in pantry, ideal for both everyday living and entertaining. The kitchen flows seamlessly into the dining area and great room, creating a bright and welcoming main living space. The primary suite provides a private retreat with a generous walk-in closet and a luxurious 4-piece ensuite complete with custom cabinetry, quartz countertops, and a glass shower. Two additional bedrooms share a dedicated 4-piece bathroom, offering plenty of room for family, guests, or a home office. The walk-up design also allows for an unfinished basement with endless possibilities whether you envision additional living space, a home gym, or abundant storage. With its open floor plan, modern finishes, and quality craftsmanship, the Rayna is a standout choice for those seeking a bungalow lifestyle with contemporary appeal. Nestled in the serene and welcoming community of Colborne. This home comes packed with quality finishes including Maintenance-free, Energy Star-rated NorthStar vinyl windows with Low-E-Argon glass; 9-foot smooth ceilings on the main floor; Designer Logan interior doors with sleek black Weiser hardware; Craftsman-style trim package with 5 1/2 baseboards and elegant casings around windows and doors; Premium cabinetry; Quality vinyl plank flooring; Moen matte Blackwater-efficient faucets in all bathrooms; Stylish, designer light fixtures throughout. Offering 7 Year TARION New Home Warranty.
Similar Properties (No results)
Courtesy of: ROYAL LEPAGE PROALLIANCE REALTY